
LIFE | Лайф — выразительный квартал комфорт-класса в Юго-Западном районе Кирова, созданный в тональности спокойного семейного ритма. Готовая инфраструктура, лаконичная архитектура с деликатными арочными мотивами, светлые квартиры с высокими потолками и продуманными лоджиями, пешеходный двор-парк без машин с детскими пространствами, спортивными зонами и уютными местами для отдыха. С первых шагов ощущается выверенный комфорт: жить легко — всё продумано за вас. Поэтому день планируется проще, а времени для самого важного становится больше.
О проекте
-
Баланс города и природыЮго-Запад — это узнаваемая кировская тишина во дворе и удобство городской жизни за его пределами. С одного края квартала — новый сквер с детскими комплексами и лавками под кронами, с другого — виды на зелёный массив и быстрый выход на вечерние маршруты. Чуть дальше — Зубаревский лес: летом — прохладные тропы и велосипедные петли, зимой — аккуратные лыжни. Природа здесь не фон, а часть сценария дня. Квартал собран логично: пешеходные связи, тихие дворы, уличные пространства без суеты. Вы выходите из подъезда — и уже в привычном ритме: детская площадка по возрасту, место для спорта, короткая дорожка к скверу. Локация не заставляет выбирать между делами и отдыхом — она подсказывает, как совместить. Жить легко — всё продумано за вас.
-
Жизнь собрана вокруг домаУтро начинается без спешки: две школы и два муниципальных детских сада — в шаговой доступности, дорога до них — короткая и безопасная. На первых этажах и в соседних домах — магазины федеральных сетей, аптеки, новый фитнес-клуб, пункты выдачи. То, что обычно разбивается на десяток поездок, здесь решается одним маршрутом «по пути домой». В LIFE инфраструктура не обещана, а настроена: просто живёте — и используете готовые решения.
-
Архитектура с характером спокойствияLIFE | Лайф узнаётся по уравновешенному силуэту, мягкой игре высот и деликатным арочным акцентам. Дома возводятся из кирпича. Оригинальный облик формируется сочетанием облицовок — декоративной штукатурки и вентилируемого фасада с фиброцементными панелями. Такой подход не только эстетичен, но и практичен: обеспечивает дополнительную защиту от перепадов температур и сохраняет аккуратный вид на годы. Цветовая палитра, состоящая из молочно-бежевых, графитовых, песочных и местами шоколадных оттенков, органично сочетается между собой и с ландшафтом двора, поддерживает ритм вертикалей и собирает силуэт дома в цельный, тёплый образ. Кондиционеры аккуратно спрятаны в стильных корзинах в тон фасада, а архитектурная подсветка мягко подчёркивает контуры дома.
-
Ваш островок тишины и уютаДвор-парк — это настоящий зелёный оазис. Ландшафтный дизайн с многоуровневыми посадками, кустарниками и цветниками создаёт атмосферу уюта и гармонии. Летом здесь тень от деревьев и яркие краски цветов, осенью — золотой ковёр листвы, а зимой — аккуратные аллеи и украшенные ели. Вечером двор преображается благодаря продуманной системе трёхуровневого освещения: основное гарантирует безопасность, акцентное выделяет дорожки и игровые зоны, а декоративное подчёркивает красоту озеленения.
-
Дворы без машин
-
Ландшафтный дизайн
-
Фитнес-клуб на территории квартала
-
Дворы для детей и взрослых
-
Вместительная парковка
-
Высота потолков от 2,7 до 3 метров
-
Отопление от котельной микрорайона
-
Колясочные
-
Горизонтальная разводка отопления
-
Панорамные лоджии и большие окна
-
Двор-парк
-
МикрорайонОкружениеЖК LIFE расположен в юго-западном районе города. Микрорайон основательно продуман с точки зрения инфраструктуры: в радиусе 300 метров есть новая школа, два новых муниципальных детских сада, магазины федеральных сетей, новый фитнес-клуб и пункты выдачи маркетплейсов. Удобства локации добавляет новая дорога с пешеходными и велодорожками: добираться домой удобно и комфортно. А расположенные рядом улицы Энтузиастов и Ульяновская ведут на одни из основных улиц города - Щорса и проспект Строителей, откуда можно легко попасть в любую часть города и быстро добраться в аэропорт или на ж/д вокзал. Маршруты общественного транспорта действуют в разных направлениях, а остановки расположены близко к домам, всего 3-5 минут пешком. К северо-востоку находится красивый Зубаревский лес. Вид на ещё один зеленый массив открывается из окон домов с северо-западной стороны. В трёх минутах ходьбы находится новый сквер с игровыми комплексами и зонами отдыха для взрослых.
-
ДворДворДвор мечты - какой он? Пышущий зеленью и располагающий к отдыху. Безопасный и просторный. Двор, где удобно отдыхать взрослым и детям. Проект благоустройства и дендрологический план двора в ЖК LIFE выполнен профессионалами и учитывает сезонность цветения насаждений, зонирование и ландшафт. Игровые комплексы разработаны для детей разных возрастных групп, поэтому двор в ЖК LIFE является прекрасной площадкой для творчества, исследований, общения и развития маленьких жителей квартала. Тенистые беседки и амфитеатр - стали любимыми местами отдыха взрослых. На спортивной площадке для футбола и баскетбола можно активно провести время с друзьями и познакомиться с соседями-любителями спорта. Work-out зона включает комплекс тренажеров, которые позволят как детям, так и людям в возрасте поддерживать физическую активность и держать себя в тонусе.
-
ПодъездыКомфорт, который встречает с порогаКаждая деталь холлов продумана, чтобы с первых шагов задать правильное настроение. Просторные входные группы в современном стиле, износостойкие материалы и тёплое архитектурное освещение создают спокойную, благородную атмосферу. Дизайнерская отделка, аккуратные панно и декоративные акценты делают пространство эстетичным и запоминающимся. Удобная навигация с понятными указателями ведёт интуитивно — от входа к лифтам, из холла во двор, без лишних кругов. Сквозные проходы обеспечивают прямой маршрут «улица ↔ двор», а колясочные и зоны хранения помогают поддерживать порядок каждый день. Скоростные лифты — тихие, вместительные, с плавным ходом — подстраиваются под семейный ритм: коляска, покупки, детский велосипед помещаются без усилий. Здесь приятно встречать гостей, возвращаться домой и просто наслаждаться гармоничной средой, которая формирует первый и каждый следующий приятный момент вашей жизни в квартале.
-
КвартирыГотовое решение для комфортной жизни без лишних хлопот. Функциональные планировки позволяют удобно разместить мебель, встроить шкафы и создать гармоничное пространство для всей семьи. Каждая деталь — про ваш комфорт: время на жизнь, а не на ремонт. Потолки высотой 2,7 м и широкие окна - одни из ключевых особенностей квартир. В таких квартирах больше света и пространства, а значит больше места для дизайнерских задумок. В качестве материала для межквартирных и межкомнатных перегородок используется кирпич, что обеспечивает хорошую звуко- и теплоизоляцию помещений. В кирпичных 9-этажных секциях применяется горизонтальная разводка отопления, это значит, что в таких квартирах нет вертикальных труб возле радиаторов, что очень удобно при отделке. Радиаторы отопления оснащены регуляторами температуры, таким образом для каждой комнаты можно настроить комфортный уровень подачи тепла. Квартиры можно приобрести как в чистовой отделке от застройщика, так и под отделку. По всей квартире предусмотрена разводка для розеток, выключателей и выводов под осветительные приборы. Панельные радиаторы оснащены новым вентилем регулирования тепла, позволяющим минимизировать подачу тепла при необходимости.
-
КладовыеКаждой вещи — своё местоКладовая помогает убрать «лишнее» из квартиры: зимние вещи, игрушки для улицы, праздничный декор, спортснаряжение. Лоджия остаётся уютной зоной отдыха, детская — просторной и светлой. В любое время вы берёте нужное и сразу возвращаете на место — удобно и без лишних поездок. Простое решение, которое каждый день дарит порядок и спокойствие.
-
Безопасность ваших детей превыше всего!Двор без машин
-
Территория двора обустроена крупномерными деревьями и ландшафтными озеленением.Озеленение территории
-
Вы можете поставить коляску в специальное помещение, которое закрывается и при этом сэкономить место в квартире.Колясочные
-
Проводите больше времени вместеДвор для детей и взрослых
-
Ходите за покупками, занимайтесь спортом, забирайте долгожданные посылки на 1 этаже своего дома!Магазины, фитнес-центр и пункты выдачи в доме
-
Красивые и удобные подъезды - комфорт и безопасность каждый день.Дизайнерская отделка подъездов
-
Во дворе 3 уровня подсветкиРазноуровневое освещение
-
Прогулки по лесу - это идеальный способ провести время вместе на свежем воздухе. Дети будут в восторге от игр на природе, а взрослые насладятся тишиной и красотой окружающего леса. Весело, полезно и незабываемо!Прогулки в лесу рядом с ЖК ЛАЙФ
-
Пробежка в лесу рядом с ЖК ЛАЙФ - это настоящее волшебство! Вдыхая свежий воздух, ощущаешь бодрость и силу, словно магия природы пробуждает тебя к жизни. Шум листвы под ногами, пение птиц, лучи солнца, пробивающиеся сквозь ветви деревьев - все это наполняет душу радостью и гармонией. Бежать по тропинкам, ощущать себя частью природы - это и есть настоящее блаженство.Лесные тропинки для пробежек
-
С выходом во двор и на парковкуСквозные подъезды
-
Велопрогулка в лесу - это отличный способ провести время на свежем воздухе и насладиться красотой природы. Шум деревьев, пение птиц, запах лесных трав - все это создает умиротворенную атмосферу и позволяет отдохнуть душе от городской суеты. Катайтесь по лесным тропинкам и заряжайтесь энергией природы. Велопрогулка - это отличный способ укрепить здоровье и поднять настроение.Велоспорт
-
Дом красив не только днем, но и ночью.Архитектурная подсветка фасада
-
В домах установлены бесшумные и быстрые лифты с высокой грузоподъемностью класса люкс.Современные лифты
-
На каждом этаже предусмотрено до 6 квартир.Мало квартир на этаже
-
Увеличенные окна с прекрасным видом обеспечивают максимум света в помещении.Большие окна
-
Потолки высотой от 2,7 м в сочетании с панорамными окнами пускают максимум солнечного света в помещения и создают ощущение свободы, воздушности, легкости.Высокие потолки от 2,7 м
-
Качественные входные двери обеспечивают безопасность и изолируют квартиру от посторонних шумов.Входные двери высокого качества
-
Счетчики тепла и электричества уже установлены, что сэкономит ваше время.Счетчики тепла и электричества
-
Данная система отопления независима от других квартир и может ремонтироваться при необходимости. Также будет полностью сохранена эстетическая составляющая дизайна вашей квартиры, так как трубы скрыты внутри пола.Горизонтальная разводка отопления
-
О жилом комплексе заботится управляющая компания от застройщикаСвоя управляющая компания
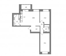
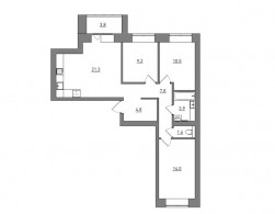
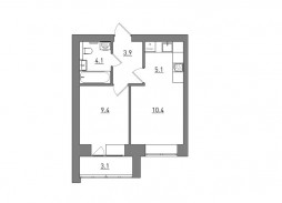
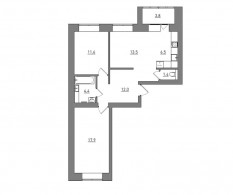
Планировки
-
- Проект LIFE | Лайф
- Отделка Без отделки
- Адрес Дорофеева, 24
- Этаж 9
Потолок 3 мКомфорт-классДом сдан -
- Проект LIFE | Лайф
- Отделка Без отделки
- Адрес Дорофеева, 22
- Этаж 6-9
Большая лоджияПанорамная лоджияКомфорт-классДом сдан -
- Проект LIFE | Лайф
- Отделка Без отделки
- Адрес Дорофеева, 22
- Этаж 9
Панорамная лоджияКомфорт-классДом сдан -
- Проект LIFE | Лайф
- Отделка Без отделки
- Адрес Дорофеева, 22
- Этаж 9
Панорамная лоджияКомфорт-классДом сдан -
- Квартирный трейд-ин
- Приведи друга — получи до 30 000 рублей!
- -50% на чистовую отделку
- Семейная ипотека от 4,5% на весь срок
- Базовая ипотека от 5,9%
- +3
- Проект LIFE | Лайф
- Отделка Без отделки
- Адрес Дорофеева, 24
- Этаж 12
Панорамная лоджияКомфорт-классДом сдан -
- Квартирный трейд-ин
- Приведи друга — получи до 30 000 рублей!
- -50% на чистовую отделку
- Семейная ипотека от 4,5% на весь срок
- Базовая ипотека от 5,9%
- +3
- Проект LIFE | Лайф
- Отделка Без отделки
- Адрес Дорофеева, 24
- Этаж 12
Потолок 3 мКомфорт-класс -
- Проект LIFE | Лайф
- Отделка Без отделки
- Адрес Дорофеева, 22
- Этаж 9
Большая лоджияПанорамная лоджияКомфорт-классДом сдан -
- Проект LIFE | Лайф
- Отделка Без отделки
- Адрес Дорофеева, 22
- Этаж 4
Панорамная лоджияРаздельный санузелКомфорт-классДом сдан -
- Проект LIFE | Лайф
- Отделка Без отделки
- Адрес Дорофеева, 22
- Этаж 8,9
Панорамная лоджияРаздельный санузелКомфорт-классДом сдан -
- Квартирный трейд-ин
- Приведи друга — получи до 30 000 рублей!
- -50% на чистовую отделку
- Семейная ипотека от 4,5% на весь срок
- Базовая ипотека от 5,9%
- +3
- Проект LIFE | Лайф
- Отделка Без отделки
- Адрес Дорофеева, 24
- Этаж 9
Комфорт-класс -
- Проект LIFE | Лайф
- Отделка Без отделки
- Адрес Дорофеева, 22
- Этаж 5,9
Просторная кухняЗоны храненияРаздельный санузелКомфорт-класс -
- Проект LIFE | Лайф
- Отделка Без отделки
- Адрес Энтузиастов, 23
- Этаж 2,16
ГардеробнаяПросторная кухня-гостинаяЗоны храненияРаздельный санузел -
- Квартирный трейд-ин
- Приведи друга — получи до 30 000 рублей!
- -50% на чистовую отделку
- Семейная ипотека от 4,5% на весь срок
- Базовая ипотека от 5,9%
- +3
- Проект LIFE | Лайф
- Отделка Без отделки
- Адрес Дорофеева, 24
- Этаж 12
Комфорт-класс -
- Квартирный трейд-ин
- Приведи друга — получи до 30 000 рублей!
- -50% на чистовую отделку
- Семейная ипотека от 4,5% на весь срок
- Базовая ипотека от 5,9%
- +3
- Проект LIFE | Лайф
- Отделка Без отделки
- Адрес Дорофеева, 24
- Этаж 12
Потолок 3 мКомфорт-класс -
- Проект LIFE | Лайф
- Отделка Без отделки
- Адрес Дорофеева, 22
- Этаж 7-9
Просторная кухняПанорамная лоджияКомфорт-классСдача раньше срока -
- Квартирный трейд-ин
- Приведи друга — получи до 30 000 рублей!
- -50% на чистовую отделку
- Семейная ипотека от 4,5% на весь срок
- Базовая ипотека от 5,9%
- +3
- Проект LIFE | Лайф
- Отделка Без отделки
- Адрес Дорофеева, 24
- Этаж 12
Комфорт-класс -
- Проект LIFE | Лайф
- Отделка Без отделки
- Адрес Дорофеева, 22
- Этаж 5,7,9
Просторная кухняРаздельный санузелКомфорт-класс -
- Проект LIFE | Лайф
- Отделка Квартира с отделкой
- Адрес Дорофеева, 22
- Этаж 1
Панорамная лоджияРаздельный санузелКомфорт-классДом сдан -
- Квартирный трейд-ин
- Приведи друга — получи до 30 000 рублей!
- -50% на чистовую отделку
- Семейная ипотека от 4,5% на весь срок
- Базовая ипотека от 5,9%
- +3
- Проект LIFE | Лайф
- Отделка Без отделки
- Адрес Дорофеева, 24
- Этаж 9
Комфорт-класс -
- Квартирный трейд-ин
- Приведи друга — получи до 30 000 рублей!
- -50% на чистовую отделку
- Семейная ипотека от 4,5% на весь срок
- Базовая ипотека от 5,9%
- +3
- Проект LIFE | Лайф
- Отделка Квартира с отделкой
- Адрес Дорофеева, 24
- Этаж 11
Комфорт-класс -
- Проект LIFE | Лайф
- Отделка Без отделки
- Адрес Дорофеева, 22
- Этаж 1
Панорамная лоджияРаздельный санузелКомфорт-классДом сдан -
- Проект LIFE | Лайф
- Отделка Без отделки
- Адрес Дорофеева, 22
- Этаж 9
Просторная кухня-гостинаяПанорамная лоджияРаздельный санузелКомфорт-класс -
- Проект LIFE | Лайф
- Отделка Без отделки
- Адрес Дорофеева, 22
- Этаж 9
Панорамная лоджияРаздельный санузелКомфорт-классДом сдан -
- Проект LIFE | Лайф
- Отделка Без отделки
- Адрес Дорофеева, 22
- Этаж 2
Просторная кухняПанорамная лоджияРаздельный санузелКомфорт-класс -
- Квартирный трейд-ин
- Приведи друга — получи до 30 000 рублей!
- -50% на чистовую отделку
- Семейная ипотека от 4,5% на весь срок
- Базовая ипотека от 5,9%
- +3
- Проект LIFE | Лайф
- Отделка Без отделки
- Адрес Дорофеева, 24
- Этаж 12
Комфорт-класс -
- Проект LIFE | Лайф
- Отделка Без отделки
- Адрес Дорофеева, 22
- Этаж 2
Панорамная лоджияРаздельный санузелКомфорт-классДом сдан -
- Квартирный трейд-ин
- Приведи друга — получи до 30 000 рублей!
- -50% на чистовую отделку
- Семейная ипотека от 4,5% на весь срок
- Базовая ипотека от 5,9%
- +3
- Проект LIFE | Лайф
- Отделка Без отделки
- Адрес Дорофеева, 24
- Этаж 6,7
Комфорт-класс -
- Проект LIFE | Лайф
- Отделка Без отделки
- Адрес Дорофеева, 22
- Этаж 8,9
Панорамная лоджияРаздельный санузелКомфорт-классДом сдан -
- Квартирный трейд-ин
- Приведи друга — получи до 30 000 рублей!
- -50% на чистовую отделку
- Семейная ипотека от 4,5% на весь срок
- Базовая ипотека от 5,9%
- +3
- Проект LIFE | Лайф
- Отделка Без отделки
- Адрес Дорофеева, 24
- Этаж 12
Комфорт-класс -
- Проект LIFE | Лайф
- Отделка Без отделки
- Адрес Дорофеева, 22
- Этаж 5,8,9
Просторная кухня-гостинаяРаздельный санузелКомфорт-классДом сдан -
- Проект LIFE | Лайф
- Отделка Без отделки
- Адрес Дорофеева, 22
- Этаж 7-9
Просторная кухня-гостинаяПанорамная лоджияРаздельный санузелКомфорт-класс -
- Квартирный трейд-ин
- Приведи друга — получи до 30 000 рублей!
- -50% на чистовую отделку
- Семейная ипотека от 4,5% на весь срок
- Базовая ипотека от 5,9%
- +3
- Проект LIFE | Лайф
- Отделка Без отделки
- Адрес Дорофеева, 24
- Этаж 12
Потолок 3 мКомфорт-класс -
- Проект LIFE | Лайф
- Отделка Квартира с отделкой
- Адрес Дорофеева, 22
- Этаж 2
Панорамная лоджияРаздельный санузелКомфорт-классДом сдан -
- Квартирный трейд-ин
- Приведи друга — получи до 30 000 рублей!
- -50% на чистовую отделку
- Семейная ипотека от 4,5% на весь срок
- Базовая ипотека от 5,9%
- +3
- Проект LIFE | Лайф
- Отделка Квартира с отделкой
- Адрес Дорофеева, 24
- Этаж 8-11
Комфорт-класс -
- Квартирный трейд-ин
- Приведи друга — получи до 30 000 рублей!
- -50% на чистовую отделку
- Семейная ипотека от 4,5% на весь срок
- Базовая ипотека от 5,9%
- +3
- Проект LIFE | Лайф
- Отделка Без отделки
- Адрес Дорофеева, 24
- Этаж 8,9,11
Раздельный санузел -
- Проект LIFE | Лайф
- Отделка Без отделки
- Адрес Дорофеева, 22
- Этаж 4
Просторная кухня-гостинаяПанорамная лоджияРаздельный санузелКомфорт-класс -
- Проект LIFE | Лайф
- Отделка Без отделки
- Адрес Дорофеева, 22
- Этаж 8,9
Просторная кухня-гостинаяПанорамная лоджияРаздельный санузелКомфорт-класс -
- Проект LIFE | Лайф
- Отделка Без отделки
- Адрес Энтузиастов, 23
- Этаж 9
Просторная кухня-гостинаяЗоны храненияРаздельный санузелКомфорт-класс -
- Квартирный трейд-ин
- Приведи друга — получи до 30 000 рублей!
- -50% на чистовую отделку
- Семейная ипотека от 4,5% на весь срок
- Базовая ипотека от 5,9%
- +3
- Проект LIFE | Лайф
- Отделка Квартира с отделкой
- Адрес Дорофеева, 24
- Этаж 8-11
Комфорт-класс -
- Квартирный трейд-ин
- Приведи друга — получи до 30 000 рублей!
- -50% на чистовую отделку
- Семейная ипотека от 4,5% на весь срок
- Базовая ипотека от 5,9%
- +3
- Проект LIFE | Лайф
- Отделка Без отделки
- Адрес Дорофеева, 24
- Этаж 9-11
Просторная кухня-гостинаяРаздельный санузелКомфорт-классДом сдан -
- Квартирный трейд-ин
- Приведи друга — получи до 30 000 рублей!
- -50% на чистовую отделку
- Семейная ипотека от 4,5% на весь срок
- Базовая ипотека от 5,9%
- +3
- Проект LIFE | Лайф
- Отделка Без отделки
- Адрес Дорофеева, 24
- Этаж 12
Комфорт-класс -
- Проект LIFE | Лайф
- Отделка Без отделки
- Адрес Дорофеева, 22
- Этаж 1
Просторная кухня-гостинаяРаздельный санузелКомфорт-классДом сдан -
- Квартирный трейд-ин
- Приведи друга — получи до 30 000 рублей!
- -50% на чистовую отделку
- Семейная ипотека от 4,5% на весь срок
- Базовая ипотека от 5,9%
- +3
- Проект LIFE | Лайф
- Отделка Без отделки
- Адрес Дорофеева, 24
- Этаж 12
Комфорт-класс -
- Квартирный трейд-ин
- Приведи друга — получи до 30 000 рублей!
- -50% на чистовую отделку
- Семейная ипотека от 4,5% на весь срок
- Базовая ипотека от 5,9%
- +3
- Проект LIFE | Лайф
- Отделка Квартира с отделкой
- Адрес Дорофеева, 24
- Этаж 7
ГардеробнаяЗоны храненияРаздельный санузелКомфорт-класс -
- Квартирный трейд-ин
- Приведи друга — получи до 30 000 рублей!
- -50% на чистовую отделку
- Семейная ипотека от 4,5% на весь срок
- Базовая ипотека от 5,9%
- +3
- Проект LIFE | Лайф
- Отделка Без отделки
- Адрес Дорофеева, 24
- Этаж 2
ГардеробнаяВид во дворПросторная кухня-гостинаяЗоны хранения -
- Проект LIFE | Лайф
- Отделка Квартира с отделкой
- Адрес Анжелия Михеева, 17
- Этаж 5
Комфорт-классДом сданКвартира с отделкой и мебелью -
- Квартирный трейд-ин
- Приведи друга — получи до 30 000 рублей!
- -50% на чистовую отделку
- Семейная ипотека от 4,5% на весь срок
- Базовая ипотека от 5,9%
- +3
- Проект LIFE | Лайф
- Отделка Квартира с отделкой
- Адрес Дорофеева, 24
- Этаж 11
ГардеробнаяКомфорт-класс

Дорофеева, 24
Дорофеева, 24
Готовность корпуса
100%
Срок сдачи: Дом сдан
33 квартиры
в продаже
4 квартиры
забронировано
-
1-комнатныеот 40.7 м²
-
2-комнатныеот 56.7 м²
-
3-комнатныеот 75.3 м²
Дорофеева, 22
Дорофеева, 22
Готовность корпуса
100%
Срок сдачи: Сдан
48 квартир
в продаже
9 квартир
забронировано
-
1-комнатныеот 35.6 м²
-
2-комнатныеот 39.7 м²
-
3-комнатныеот 52.1 м²
Дорофеева, 20
Дорофеева, 20
Готовность корпуса
33%
Срок сдачи: III кв. 2027
93 квартиры
в продаже
6 квартир
забронировано
-
1-комнатныеот 35 м²
-
2-комнатныеот 35.1 м²
-
3-комнатныеот 65.1 м²
-
4-комнатныеот 94.8 м²
-
Школа №263 мин
-
Детский сад2 мин
-
Супермаркет1 мин
-
Школа №235 мин
-
Аптека3 мин.
-
Фитнес клуб3 мин
-
Больницы15 мин
-
Супермаркет и кафе5 мин
-
Сквер4 мин
-
Зубаревский лес7 мин
-
Спортивные школы20 мин
-
Барбершоп3 мин
-
ТРЦ Глобус15 мин
Отзывы жильцов
Л
Лариса Сущенко
12.01.2022
Очень красивый комплекс. Дом ещё строится, но с каждым днём становится всё более красивым и современным. Удобное место, интересные планировки квартир, большая и удобная для семей с детьми придомовая территория и площадки. А вечерняя подсветка фасада дома делает его очень оригинальным и неповторимым!
В
Виктория Волк
12.01.2022
Отличный современный жилой комплекс. Всё для молодых семей с детьми. Рекомендую
А
Алексей Мишарин
12.01.2022
Новый район. Школа, детсад, всякие магазины. Дома различной конфигурации
Е
Елена Игнатова
12.01.2022
Данный комплекс на стадии строительства. Компания КСМ просто идеальный застройщик, помимо сдачи домой полное качественное обслуживание.
Е
Елена Шкляева
26.09.2022
Михеева 17, конечно шедевр от КСМ! Именно таким должно быть современное жильё! Побольше вам таких проектов!
Н
Наталия Шмакова
26.09.2022
Хороший, тихий район. Много парковочных мест . Хорошо развита инфраструктура района. Утром пробки и слышимость высокая , но это везде.
А
Анастасия
20.04.2023
Спасибо огромное застройщику Кировспецмонтаж за помощь в выборе квартиры, за сопровождение и консультации при покупке жилья, за качественно выполнение работы в квартире, за вежливый и профессиональный коллектив на всех этапах покупки. Мы очень счастливы, чего и всем желаем! всё это благодаря застройщику КСМ!
М
Макс Немзоров
02.08.2023
Приятный, чистый и современный район. Достаточное количество парковочных мест. Закрытая от автомобилей детская площадка. Есть вся необходимая инфраструктура, а так же все необходимые магазины.
Д
Дмитрий
02.08.2023
Расположение одновременном далеко и близко от города, можно доехать на многих автобусах. Планировки квартир удобные. Внутридомовой двор хороший, много места и площадок. Во дворе чисто
Д
Данила Садырин
02.08.2023
Приятный, хороший, спокойный район. Есль неподалёку лесочек, где можно пожарить шашлычки. Из магазинов неподалёку есть всё необходимое. Дорогие хорошие, советую!
С
Сергей Кутергин
04.09.2023
Шикарнейшая детская площадка, в Кирове наверное такой больше нет
Н
Наталья
31.10.2023
Сами из Ульяновска, были в Кирове в гостях, в восторге от этого жилого комплекса!
А
Александр
31.10.2023
Все замечательно, детская площадка большая, есть где посидеть родителям, пока дети играют. Есть футбольная площадка, спортивные тренажеры. В домах выход из подъездов и на стоянку, и во двор, удобно.
С
Сергей
31.10.2023
Шикарнейшая детская площадка, в Кирове наверное такой больше нет
Э
Эльвира
31.10.2023
Двор закрытый ,можно спокойно отпускать ребенка на прогулку . Площадь игровая большая ,есть фонари для прогулок вечером .
А
Александр
25.03.2024
Все замечательно, детская площадка большая, есть где посидеть родителям, пока дети играют. Есть футбольная площадка, спортивные тренажеры. В домах выход из подъездов и на стоянку, и во двор, удобно.
Э
Эльвира Перминова
25.03.2024
Двор закрытый ,можно спокойно отпускать ребенка на прогулку . Площадь игровая большая ,есть фонари для прогулок вечером .
М
Макс Немзоров
25.03.2024
Приятный, чистый и современный район. Достаточное количество парковочных мест. Закрытая от автомобилей детская площадка. Есть вся необходимая инфраструктура, а так же все необходимые магазины.
М
Максим Ларионов
25.03.2024
Очень хороший комплекс. много площадок для детей в которых маловероятно что-то либо сломать. Также если жить на первых-вторых этажах детей будет очень хорошо видно. Стены (вроде) не картонные. Как минимум меня всё устраивает! Я ставлю 5 звезд
Д
Дмитрий
25.03.2024
Расположение одновременном далеко и близко от города, можно доехать на многих автобусах. Планировки квартир удобные. Внутридомовой двор хороший, много места и площадок. Во дворе чисто
ул. Воровского, д. 161
8 (8332) 51-11-11
Будни с 8:00 до 18:00
Суббота с 9:00 до 18:00 без обеда
Воскресенье с 10:00 до 14:00 без обеда
Суббота с 9:00 до 18:00 без обеда
Воскресенье с 10:00 до 14:00 без обеда