-
ПроектЧистые пруды
-
Количество квартир6
-
Этажи2-4,11,14,17
-
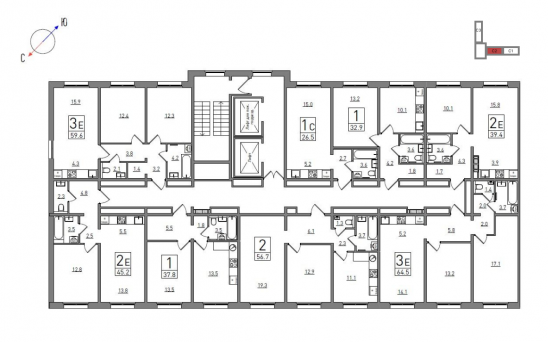
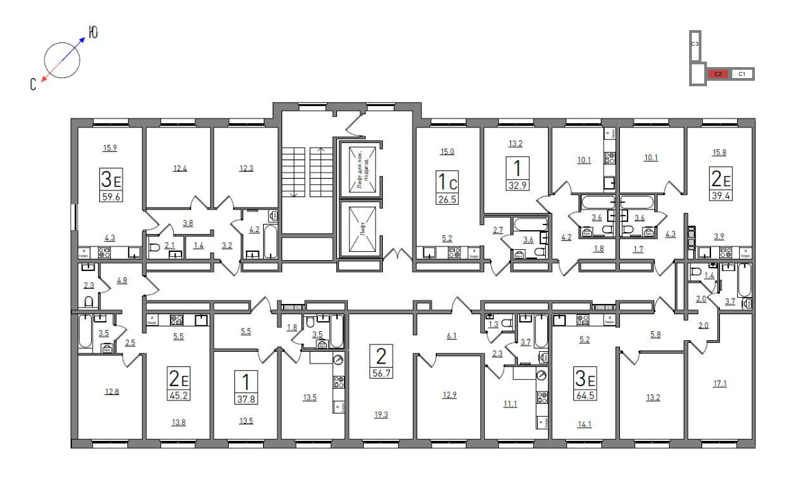
Общая площадь37,8 м²
-
Площадь кухни13,5 м²
-
Площадь комнат13,5 м²
-
Этажность17
-
Высота потолков2,64 м
-
Адрес
-
Срок сдачиII кв. 2027 г.
Квартиры с данной планировкой
- № 152 Проект Чистые пруды Отделка Квартира с отделкой Этаж 2
- № 160 Проект Чистые пруды Отделка Без отделки Этаж 3
- № 168 Проект Чистые пруды Отделка Без отделки Этаж 4
- № 224 Проект Чистые пруды Отделка Без отделки Этаж 11
- № 248 Проект Чистые пруды Отделка Без отделки Этаж 14
- № 272 Проект Чистые пруды Отделка Без отделки Этаж 17
О проекте Чистые пруды
-
Двор плавно перетекает в прогулочную зону, окруженную зеленью. Заряжающие энергией утренние пробежки и приятные вечерние прогулки в закатном солнце смогут стать частью Вашей жизни. А если Вы предпочитаете спокойный отдых, то располагайтесь в беседке с любимой книгой или играйте в настольные игры с друзьями.Прогулочная зона -
Разноуровневое освещение создаёт особую атмосферу уюта и позволяет наслаждаться красотой территории в любое время суток. Основные пути освещены для безопасности, зоны отдыха — для атмосферы, а архитектурные элементы подсвечены для красоты. Благодаря такому решению двор превращается в комфортное пространство для вечерних прогулок, детских игр и отдыха всей семьёй.Разноуровневое освещение двора -
Ландшафтное озеленение сделает двор по-настоящему комфортным и уютным местом для отдыха. Каждая группа растений подобрана так, чтобы радовать глаз и дарить жителям прекрасное настроение. Зелёный двор даст Вам почувствовать, что красота — не где-то в парках, а прямо за вашим окном.Ландшафтное озеленение -
Здесь каждый житель будет уверен в безопасности своих близких: дети смогут свободно играть, а взрослые — отдыхать в тишине и комфорте. На территории двора есть уютные зоны отдыха, детские игровые и спортивные площадки с уличными тренажёрами и зонами WorkOut. Автомобили останутся за пределами жилой зоны, а внутри — только свежий воздух, зелень и спокойствие.Двор без машин -
Мягкая подсветка, тёплые оттенки, игра теней добавляют уюта вечерним прогулкам по своему району. Можно не спеша пройтись, разглядывая, как свет играет на поверхности, или устроить мини-фотосессию прямо у подъезда — больше не нужны фильтры, естественное освещение уже прекрасное. Теперь Ваш дом видно издалека, но не как серую многоэтажку, а как место, куда хочется возвращаться.Архитектурная подсветка -
Большое количество мест, чёткая разметка и зонирование избавляют от поисков парковки и обеспечивают удобство и безопасность для автомобилистов.Парковка по внешнему периметру дома -
В шаговой доступности находятся новые школы, детские сады, МФЦ, медицинские учреждения, магазины, ПВЗ, ТЦ, кафе, храм, парк и несколько остановок общественного транспорта.Удобное расположение инфраструктуры -
Своя котельная — это гарантия комфортного проживания в доме круглый год. Система работает по современным технологиям, обеспечивая оптимальную температуру в квартирах в зависимости от погодных условий. Это не только повышает уровень комфорта жильцов, но и позволяет существенно экономить на коммунальных платежах.Автономная котельная микрорайона -
Благодаря 6-полосному путепроводу Ваши повседневные поездки станут более лёгкими и приятными. Вы сможете быстро добраться в любую часть города на личном или общественном транспорте, сэкономив драгоценное время на дорогу, которое можно провести со своей семьёй и за любимыми занятиями.6-полосный путепровод
Похожие планировки
-
- Квартирный трейд-ин
- Приведи друга — получи до 30 000 рублей!
- -50% на чистовую отделку
- Семейная ипотека от 4,5% на весь срок
- Базовая ипотека от 5,9%
- +3
1-комнатная, 41.1 м²
- Проект LIFE | Лайф
- Отделка Без отделки
- Адрес Дорофеева, 24
- Этаж 12
-
1-комнатная, 38.5 м²
- Проект Чистые пруды
- Отделка Без отделки
- Адрес Чистопрудненская, д. 13
- Этаж 12,13
Киров, ул. Воровского, д. 161
ksm-kirov.ru
+7 (8332) 511-111
Будни с 8:00 до 18:00
Суббота с 9:00 до 18:00 без обеда
Воскресенье с 10:00 до 14:00 без обеда
Суббота с 9:00 до 18:00 без обеда
Воскресенье с 10:00 до 14:00 без обеда
1-комнатная, 37.8 м²
Чистопрудненская, д. 13а
-
Срок сдачиII квартал 2027
-
Площадьот 37,8 м²
-
Высота2,64 м
-
Этаж(и)2-4,11,14,17 из 17
-
МатериалПанель
Смотреть планировку
Отсканируйте QR-код
и посмотрите на ksm-kirov.ru
и посмотрите на ksm-kirov.ru
Документ создан: 28.10.2025
Не является публичной офертой, цена может быть скорректирована.
Информация взята с сайта СЗ «Кировспецмонтаж»
Информация взята с сайта СЗ «Кировспецмонтаж»