-
ПроектРИВЕР ПАРК
-
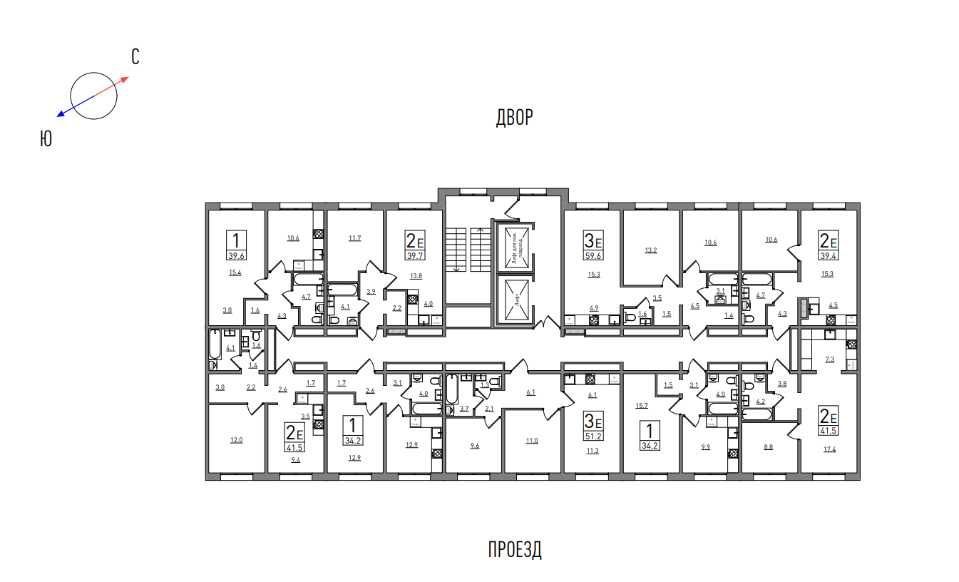
Номер квартиры599
-
ОтделкаБез отделки
-
Общая площадь39,7 м²
-
Площадь кухни4 м²
-
Площадь комнат25,5 м²
-
Номер квартиры599
-
Высота потолков2,6 м
-
Этаж/этажность14/14
-
Секция4
-
Адрес
-
Тип домаУтепленная панель
-
Срок сдачиII кв. 2027
-
Новый уютный и современный детский сад расположен на территории жилого комплекса. КСМ построил детский сад с большой заботой и вниманием к деталям: здесь есть площадки для занятий спортом на улице, безопасные игровые зоны, музыкальный и физкультурный залы - всё для комфорта родителей и малышей.Детский сад на территории ЖК
-
Из окон открываются зачаровывающие виды на лес и заречную часть города.Шикарные виды
-
Безопасные дворы без автомобилей, с доступом только для жителей Ривер ПаркаЗакрытые дворы
-
Независимость от теплоснабжающих компаний городаСобственная котельная
-
Вход в подъезды с уровня земли.Безбарьерная среда
-
Спортивное поле для игр в баскетбол или минифутбол, зона с тренаржёрами и полоса препятствий для любителей активного отдыхаСпортплощадка
-
В Ривер Парке дизайн и функциональность сочетаются даже в отделке подъездов: удобные колясочные на первых этажах, навигация в лифтовых холлах, вместительные лифтыФункциональные подъезды
-
Больше сценариев для дизайна: можно сделать комнату для отдыха, учёбы или хобби. В отличие от самостоятельного утепления, вам не потребуются долгие согласования.Тёплые лоджии
-
Большие окна - это не только красивый вид, а еще и большое количество естественного света в комнате!Большие окна
-
Обеспечивает дополнительное освещение придомовой территории и подчеркивает архитектурный стиль ЖК.Архитектурная подсветка
-
До центра города можно добраться на личном авто или автобусе.Транспортная доступность
Похожие планировки
-
- Квартирный трейд-ин
- Приведи друга — получи до 30 000 рублей!
- -50% на чистовую отделку
- Семейная ипотека от 4,5% на весь срок
- Базовая ипотека от 5,9%
- +3
- Проект LIFE | Лайф
- Отделка Квартира с отделкой
- Адрес Дорофеева, 24
- Этаж 11
-
- Квартирный трейд-ин
- Приведи друга — получи до 30 000 рублей!
- -50% на чистовую отделку
- Семейная ипотека от 4,5% на весь срок
- Базовая ипотека от 5,9%
- +3
- Проект LIFE | Лайф
- Отделка Квартира с отделкой
- Адрес Дорофеева, 24
- Этаж 8-11
-
- Квартирный трейд-ин
- Приведи друга — получи до 30 000 рублей!
- -50% на чистовую отделку
- Семейная ипотека от 4,5% на весь срок
- Базовая ипотека от 5,9%
- +3
- Проект LIFE | Лайф
- Отделка Без отделки
- Адрес Дорофеева, 24
- Этаж 12
-
- Квартирный трейд-ин
- Приведи друга — получи до 30 000 рублей!
- -50% на чистовую отделку
- Семейная ипотека от 4,5% на весь срок
- Базовая ипотека от 5,9%
- +3
- Проект LIFE | Лайф
- Отделка Без отделки
- Адрес Дорофеева, 24
- Этаж 12
Киров, ул. Воровского, д. 161
ksm-kirov.ru
+7 (8332) 511-111
Будни с 8:00 до 18:00
Суббота с 9:00 до 18:00 без обеда
Воскресенье с 10:00 до 14:00 без обеда
Суббота с 9:00 до 18:00 без обеда
Воскресенье с 10:00 до 14:00 без обеда
2-комнатная, 39.7 м², №599 , Без отделки
Прибрежный, д. 6 (2 очередь)
-
Секция4
-
Срок сдачиII квартал 2027
-
Площадь39,7 м²
-
Высота2,6 м
-
Этаж14 из 14
-
МатериалУтепленная панель
Смотреть квартиру
Отсканируйте QR-код
и посмотрите на ksm-kirov.ru
и посмотрите на ksm-kirov.ru
Документ создан: 12.10.2025
Не является публичной офертой, цена может быть скорректирована.
Информация взята с сайта СЗ «Кировспецмонтаж»
Информация взята с сайта СЗ «Кировспецмонтаж»