-
ПроектРИВЕР ПАРК
-
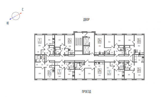
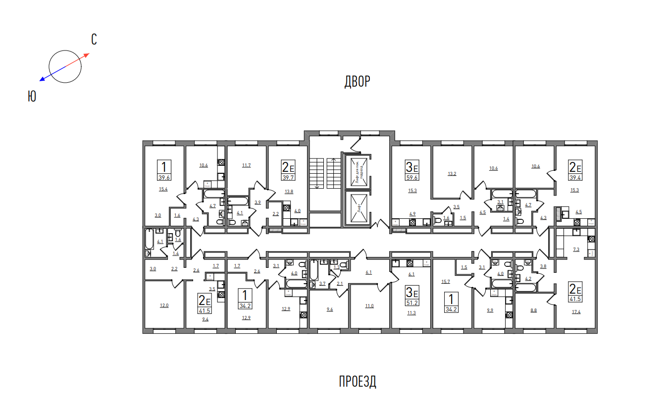
Количество квартир5
-
Этажи2,8,9,11,14
-
Общая площадь39,7 м²
-
Площадь кухни4 м²
-
Площадь комнат25,5 м²
-
Этажность14
-
Высота потолков2,6 м
-
Адрес
-
Срок сдачиII кв. 2026
Квартиры с данной планировкой
- № 491 Проект РИВЕР ПАРК Отделка Квартира с отделкой Этаж 2
- № 545 Проект РИВЕР ПАРК Отделка Без отделки Этаж 8
- № 554 Проект РИВЕР ПАРК Отделка Квартира с отделкой Этаж 9
- № 572 Проект РИВЕР ПАРК Отделка Без отделки Этаж 11
- № 599 Проект РИВЕР ПАРК Отделка Без отделки Этаж 14
О проекте РИВЕР ПАРК
-
Новый уютный и современный детский сад расположен на территории жилого комплекса. КСМ построил детский сад с большой заботой и вниманием к деталям: здесь есть площадки для занятий спортом на улице, безопасные игровые зоны, музыкальный и физкультурный залы - всё для комфорта родителей и малышей.Детский сад на территории ЖК
-
Из окон открываются зачаровывающие виды на лес и заречную часть города.Шикарные виды -
Безопасные дворы без автомобилей, с доступом только для жителей Ривер ПаркаЗакрытые дворы
-
Независимость от теплоснабжающих компаний городаСобственная котельная -
Вход в подъезды с уровня земли.Безбарьерная среда -
Спортивное поле для игр в баскетбол или минифутбол, зона с тренаржёрами и полоса препятствий для любителей активного отдыхаСпортплощадка -
В Ривер Парке дизайн и функциональность сочетаются даже в отделке подъездов: удобные колясочные на первых этажах, навигация в лифтовых холлах, вместительные лифтыФункциональные подъезды
-
Больше сценариев для дизайна: можно сделать комнату для отдыха, учёбы или хобби. В отличие от самостоятельного утепления, вам не потребуются долгие согласования.Тёплые лоджии -
Большие окна - это не только красивый вид, а еще и большое количество естественного света в комнате!Большие окна -
Обеспечивает дополнительное освещение придомовой территории и подчеркивает архитектурный стиль ЖК.Архитектурная подсветка -
До центра города можно добраться на личном авто или автобусе.Транспортная доступность
Похожие планировки
-
- Квартирный трейд-ин
- Приведи друга — получи до 30 000 рублей!
- -50% на чистовую отделку
- Семейная ипотека от 4,5% на весь срок
- Базовая ипотека от 5,9%
- +3
2-комнатная, 57 м²
- Проект LIFE | Лайф
- Отделка Квартира с отделкой
- Адрес Дорофеева, 24
- Этаж 11
-
- Квартирный трейд-ин
- Приведи друга — получи до 30 000 рублей!
- -50% на чистовую отделку
- Семейная ипотека от 4,5% на весь срок
- Базовая ипотека от 5,9%
- +3
2-комнатная, 80.2 м²
- Проект LIFE | Лайф
- Отделка Квартира с отделкой
- Адрес Дорофеева, 24
- Этаж 8-11
-
- Квартирный трейд-ин
- Приведи друга — получи до 30 000 рублей!
- -50% на чистовую отделку
- Семейная ипотека от 4,5% на весь срок
- Базовая ипотека от 5,9%
- +3
2-комнатная, 57 м²
- Проект LIFE | Лайф
- Отделка Без отделки
- Адрес Дорофеева, 24
- Этаж 12
-
- Квартирный трейд-ин
- Приведи друга — получи до 30 000 рублей!
- -50% на чистовую отделку
- Семейная ипотека от 4,5% на весь срок
- Базовая ипотека от 5,9%
- +3
2-комнатная, 80.4 м²
- Проект LIFE | Лайф
- Отделка Без отделки
- Адрес Дорофеева, 24
- Этаж 12
Киров, ул. Воровского, д. 161
ksm-kirov.ru
+7 (8332) 511-111
Будни с 8:00 до 18:00
Суббота с 9:00 до 18:00 без обеда
Воскресенье с 10:00 до 14:00 без обеда
Суббота с 9:00 до 18:00 без обеда
Воскресенье с 10:00 до 14:00 без обеда
2-комнатная, 39.7 м²
Прибрежный, д. 6 (2 очередь)
-
Срок сдачиII квартал 2027
-
Площадьот 39,7 м²
-
Высота2,6 м
-
Этаж(и)2,8,9,11,14 из 14
-
МатериалУтепленная панель
Смотреть планировку
Отсканируйте QR-код
и посмотрите на ksm-kirov.ru
и посмотрите на ksm-kirov.ru
Документ создан: 28.10.2025
Не является публичной офертой, цена может быть скорректирована.
Информация взята с сайта СЗ «Кировспецмонтаж»
Информация взята с сайта СЗ «Кировспецмонтаж»