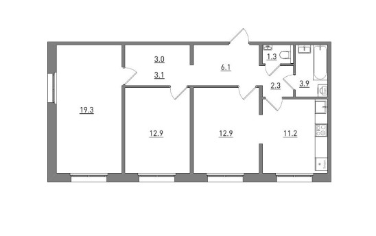
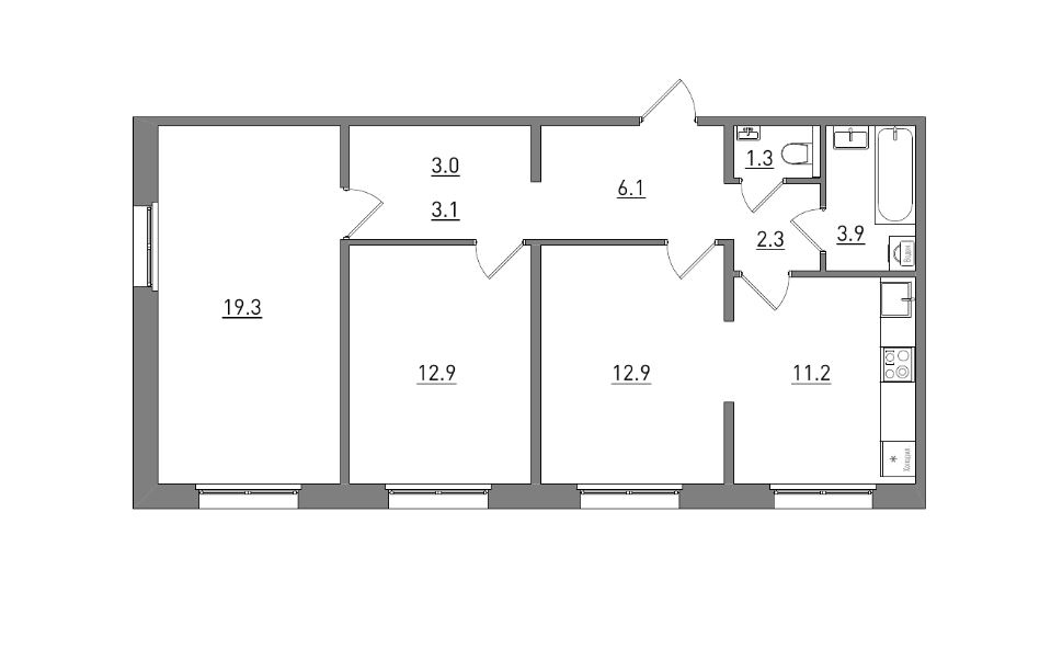
3-комнатная квартира, 76 м²

  • Проект
    Чистые пруды
  • Количество квартир
    1
  • Этажи
    1
  • Общая площадь
    76 м²
  • Площадь кухни
    11,2 м²
  • Площадь комнат
    45,1 м²
  • Этажность
    17
  • Высота потолков
    2,6 м
  • Адрес
  • Срок сдачи
    III кв. 2027
  • Готовность дома
    23%
  • Угловая
  • Просторная кухня
  • Раздельный санузел
  • Комфорт-класс

О проекте Чистые пруды

  • Процветающий микрорайон
    Процветающий микрорайон
    Внутри микрорайона есть абсолютно всё, что необходимо для комфортной жизни: добрые соседи, две школы, пять детских садов, своя котельная, поликлиника, храм, магазины и торговые центры, фитнес-клубы, скверы, площадки для спорта и прогулок.

Преимущества

2 / 5
  • Двор без машин
    Безопасность для детей, комфорт для взрослых: больше места для прогулок, игр и отдыха
    Двор без машин
  • Подъезды с дизайнерской отделкой
    Стильное и функциональное пространство с первого шага: продуманное освещение, удобное зонирование и качественные материалы
    Подъезды с дизайнерской отделкой
  • Навигация в подъездах
    Удобство для всех жильцов и гостей: понятные указатели и схемы помогут быстро найти нужную квартиру, этаж или выход
    Навигация в подъездах
  • Разноуровневое освещение двора
    Гулять комфортно даже в тёмное время суток: освещение адаптировано под каждую зону двора: мягкое — у скамеек и подсветка ландшафта, яркое — на дорожках и площадках. Удобно и безопасно для всех.
    Разноуровневое освещение двора
  • Вместительные бесшумные лифты
    Комфорт с первой секунды: лифты работают быстро, плавно, без лишнего шума. В просторную кабину лифта поместится детская коляска, крупногабаритная мебель и техника
    Вместительные бесшумные лифты
  • Спортивная площадка
    Оборудованное пространство для разных видов активности на свежем воздухе — всё рядом с домом.
    Спортивная площадка
  • Детская игровая площадка
    Во дворе расположена детская игровая площадка с безопасным покрытием и зонированием по возрастам.
    Детская игровая площадка
  • Зоны отдыха
    Место, где можно расслабиться: уютные обустроенные уголки во дворе для тихого отдыха на свежем воздухе и спокойного времяпрепровождения.
    Зоны отдыха
  • Парковка по внешнему периметру дома
    Организованная парковка по внешнему периметру дома, чтобы двор оставался безопасным местом для отдыха, игр и спокойных прогулок.
    Парковка по внешнему периметру дома
  • Ландшафтный дизайн двора
    Благоустроенный двор с продуманным озеленением: комфортная среда для прогулок и отдыха рядом с домом в любое время года.
    Ландшафтный дизайн двора

Похожие планировки

Киров, ул. Воровского, д. 161
ksm-kirov.ru
+7 (8332) 511-111
Будни с 8:00 до 18:00
Суббота с 9:00 до 18:00 без обеда
Воскресенье с 10:00 до 18:00 без обеда
3-комнатная, 76 м²
Чистопрудненская, 11
Документ создан: 27.04.2026
Не является публичной офертой, цена может быть скорректирована.
Информация взята с сайта СЗ «Кировспецмонтаж»
Заказать консультацию
Если у вас есть вопросы или нужна помощь с выбором квартиры, заполните форму и наши специалисты свяжутся с вами в ближайшее время!
Наш менеджер свяжется с вами!