-
ПроектСити Парк
-
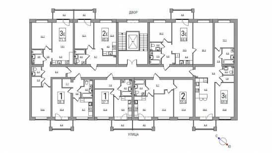
Количество квартир2
-
Этажи2,3
-
Общая площадь45 м²
-
Площадь кухни4 м²
-
Площадь комнат24,1 м²
-
Этажность6
-
Высота потолков2,7 м
-
Адрес
-
Срок сдачиIII кв. 2026
Квартиры с данной планировкой
-
Дворы в жилом комплексе безопасны: туда нет доступа машинам и посторонним. А на их территории расположены зеленые зоны с цветниками и, уютные зоны отдыха, спортивные и игровые площадки как для активного, так и для спокойного времяпровождения.Закрытый двор
-
В каждом подъезде оборудованы колясочные – это не только избавит от необходимости поднимать на свой этаж коляску или велосипед, но и сохранит чистоту на этажах и в квартирах. Кроме того, в колясочных так же, как и подъездах, установлено видеонаблюдение.Колясочные
-
В домах установлены тихие, энергоэффективные и просторные лифты, рассчитанные до 1000 кг: в них никогда не тесно ехать большой компанией или перевозить крупногабаритные вещи.Надёжные лифты
-
К выбору материалов, из которых возводится дом, нужно подходить с особым вниманием. Кирпич — один из самых популярных материалов, и у него есть множество преимуществ. Кирпичные дома имеют высокий срок службы, обладают устойчивостью к внешним воздействиям и имеют отличные теплоизоляционные свойства.Кирпичные стены
-
Неспешные прогулки, утренние пробежки на свежем воздухе или семейные велосипедные прогулки - здесь можно выбрать любой вид досуга на свой вкус, ведь сделать это можно в живописном лесу, расположенном всего в нескольких минутах от дома.Близость леса
-
Удобно, когда сезонные вещи не занимают место в квартире, освобождая пространство для хобби, отдыха или игр.Кладовые в доме
Похожие планировки
-
- Квартирный трейд-ин
- Приведи друга — получи до 30 000 рублей!
- -50% на чистовую отделку
- Семейная ипотека от 4,5% на весь срок
- Базовая ипотека от 5,9%
- +3
- Проект LIFE | Лайф
- Отделка Квартира с отделкой
- Адрес Дорофеева, 24
- Этаж 11
-
- Квартирный трейд-ин
- Приведи друга — получи до 30 000 рублей!
- -50% на чистовую отделку
- Семейная ипотека от 4,5% на весь срок
- Базовая ипотека от 5,9%
- +3
- Проект LIFE | Лайф
- Отделка Квартира с отделкой
- Адрес Дорофеева, 24
- Этаж 8-11
-
- Квартирный трейд-ин
- Приведи друга — получи до 30 000 рублей!
- -50% на чистовую отделку
- Семейная ипотека от 4,5% на весь срок
- Базовая ипотека от 5,9%
- +3
- Проект LIFE | Лайф
- Отделка Без отделки
- Адрес Дорофеева, 24
- Этаж 12
-
- Квартирный трейд-ин
- Приведи друга — получи до 30 000 рублей!
- -50% на чистовую отделку
- Семейная ипотека от 4,5% на весь срок
- Базовая ипотека от 5,9%
- +3
- Проект LIFE | Лайф
- Отделка Без отделки
- Адрес Дорофеева, 24
- Этаж 12
Киров, ул. Воровского, д. 161
ksm-kirov.ru
+7 (8332) 511-111
Будни с 8:00 до 18:00
Суббота с 9:00 до 18:00 без обеда
Воскресенье с 10:00 до 14:00 без обеда
Суббота с 9:00 до 18:00 без обеда
Воскресенье с 10:00 до 14:00 без обеда
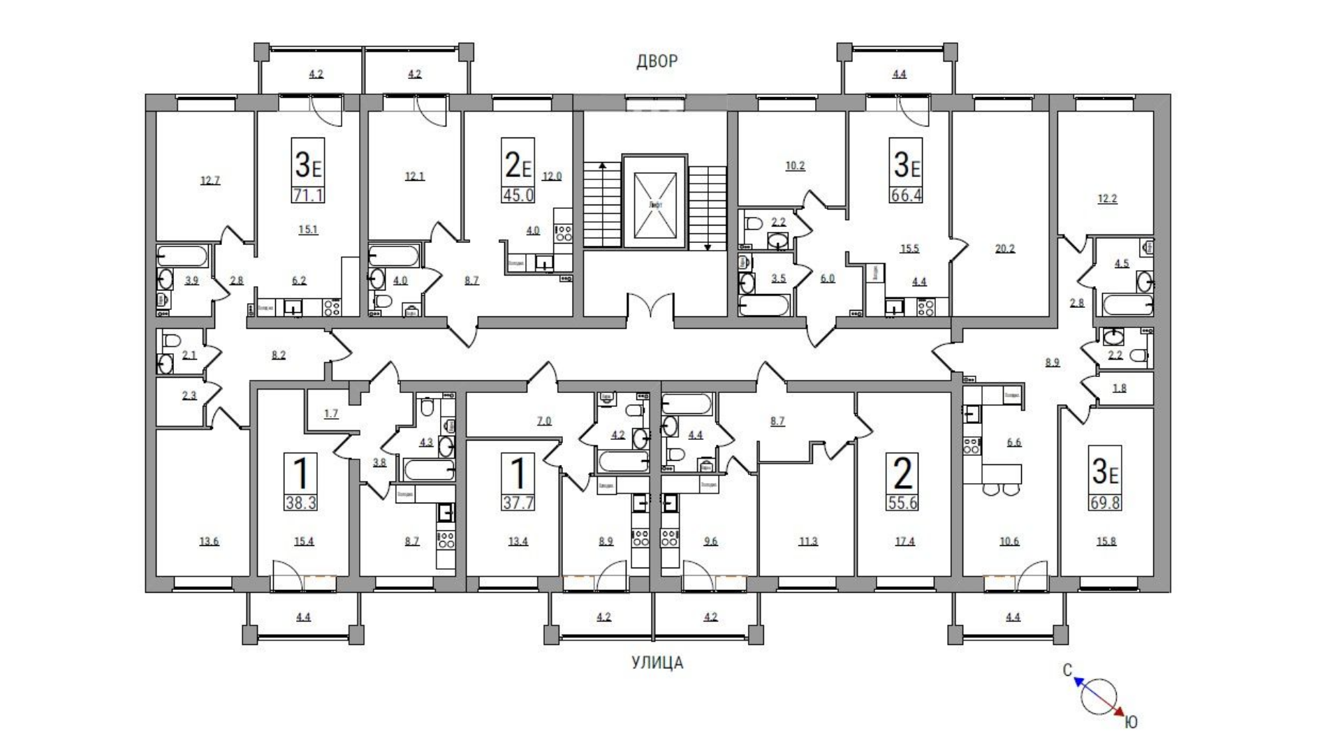
2-комнатная, 45 м²
Парковая, 1б
-
Срок сдачиIII квартал 2026
-
Площадьот 45 м²
-
Высота2,7 м
-
Этаж(и)2,3 из 6
-
МатериалКирпич
Смотреть планировку
Отсканируйте QR-код
и посмотрите на ksm-kirov.ru
и посмотрите на ksm-kirov.ru
Документ создан: 12.10.2025
Не является публичной офертой, цена может быть скорректирована.
Информация взята с сайта СЗ «Кировспецмонтаж»
Информация взята с сайта СЗ «Кировспецмонтаж»